8 Banksia Street, Hill Top
Complete the Dream
This property offers an opportunity to continue the dream of the previous owner, which started over 20 years ago and was never finished. All you need is a dream and vision to complete this project. Set on 2 hectares outside of the village precinct, this is a rare opportunity to build your dream home surrounded by established quality property and pristine bushland.
Features Include:
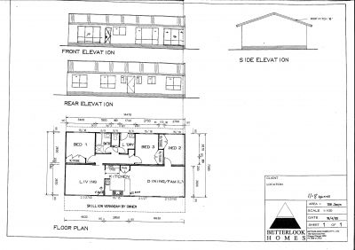
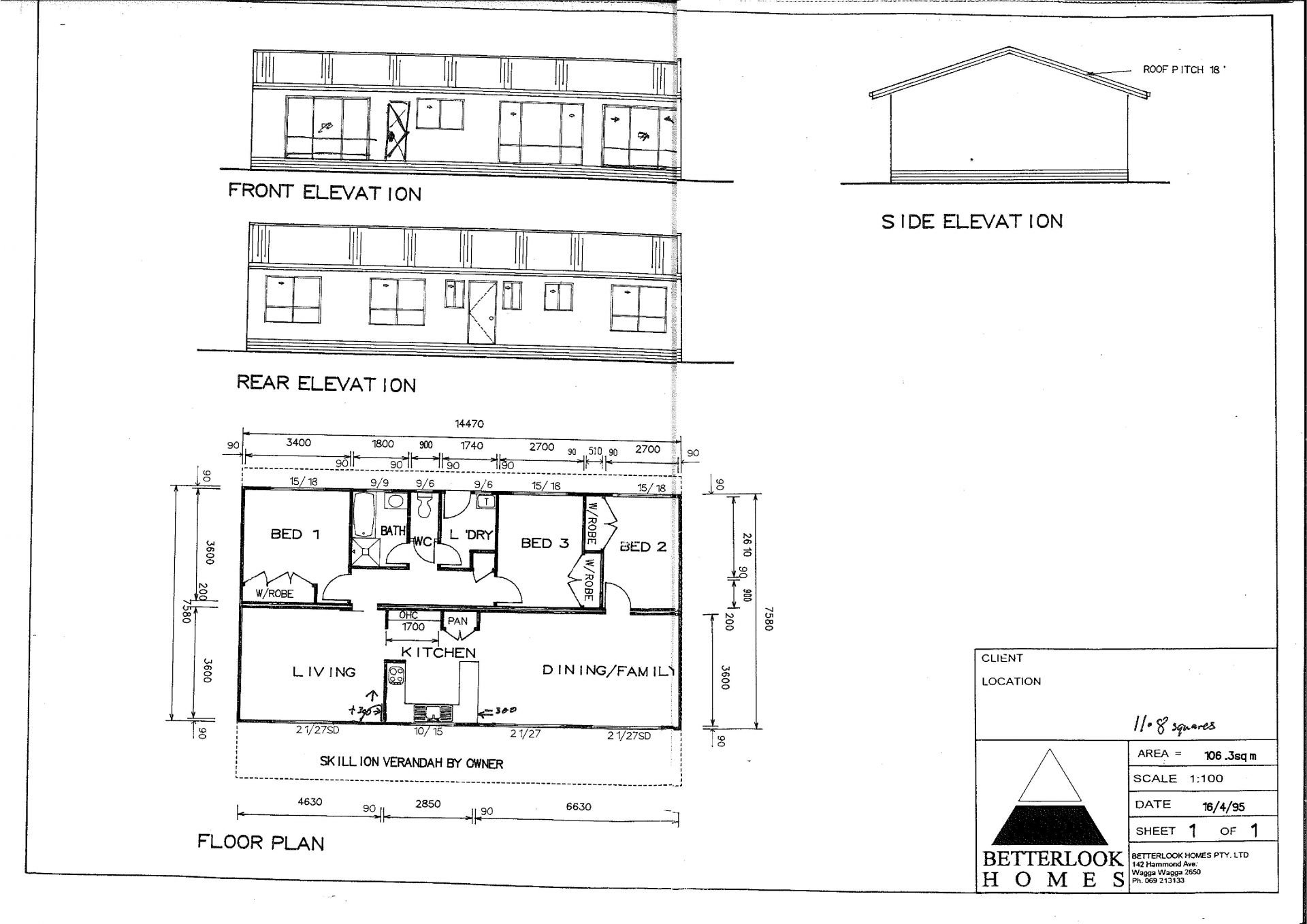
- 3 Bedroom Cottage needing some TLC is the perfect place to settle while building. Can easily turn into a granny flat once the main home is finished.
- Cottage includes walk in robes to all bedrooms, solar panels, kitchen, bathroom, laundry, two living spaces and a carport.
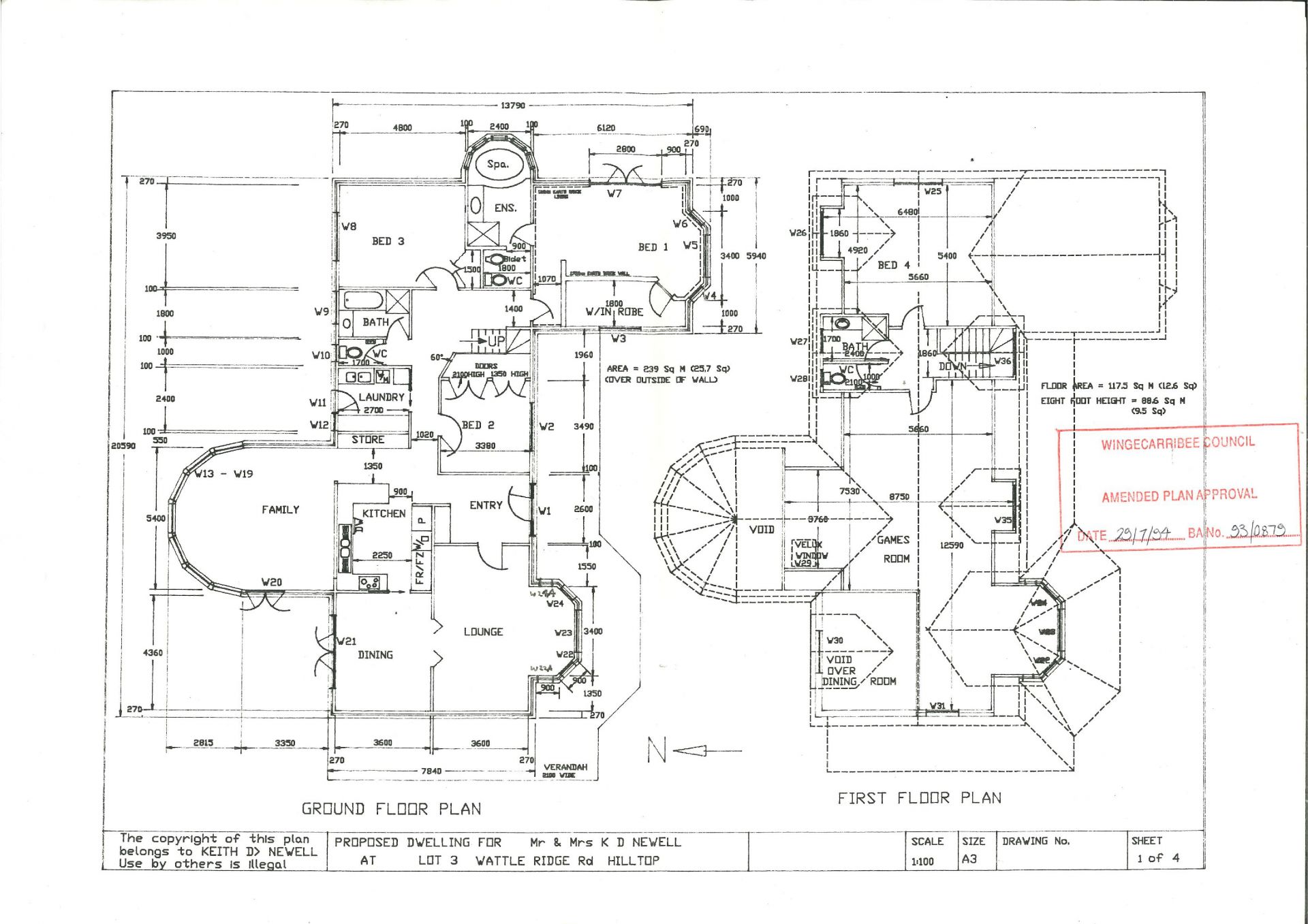
- Council approved concrete slab to build your dream home, complete with original approved engineering plans.
- Block is connected to town water, septic system, power and has some rural fencing.
- Studio shedding with loft and single car garage - incomplete.
- Single car lockup garaging/workshop and garden shed.
- Access via Banksia Street on a sealed road.
This is an ideal escape with a wide variety of natural flora and fauna. For more information or to arrange an inspection, please call Arvo Pikkat on 0418 284 326.
*All web enquiries require a contact number AND email address. Furthermore, we note that all care has been taken in providing accurate information in this advertisement. However, prospective purchasers are to reply on their own enquiries.
Features Include:
- 3 Bedroom Cottage needing some TLC is the perfect place to settle while building. Can easily turn into a granny flat once the main home is finished.
- Cottage includes walk in robes to all bedrooms, solar panels, kitchen, bathroom, laundry, two living spaces and a carport.
- Council approved concrete slab to build your dream home, complete with original approved engineering plans.
- Block is connected to town water, septic system, power and has some rural fencing.
- Studio shedding with loft and single car garage - incomplete.
- Single car lockup garaging/workshop and garden shed.
- Access via Banksia Street on a sealed road.
This is an ideal escape with a wide variety of natural flora and fauna. For more information or to arrange an inspection, please call Arvo Pikkat on 0418 284 326.
*All web enquiries require a contact number AND email address. Furthermore, we note that all care has been taken in providing accurate information in this advertisement. However, prospective purchasers are to reply on their own enquiries.
features
- Living Area
overview
-
1P2282
-
$860,000 - $920,000
-
House
-
For Sale
-
8 Banksia Street Hill Top NSW
-
3
-
1
-
3
-
106 sqm
-
4.94 Acres
-
2
-
1
